Headline

Diese Rubrik wird momentan vollständig neu gestaltet und steht Ihnen in Kürze wieder zur Verfügung.

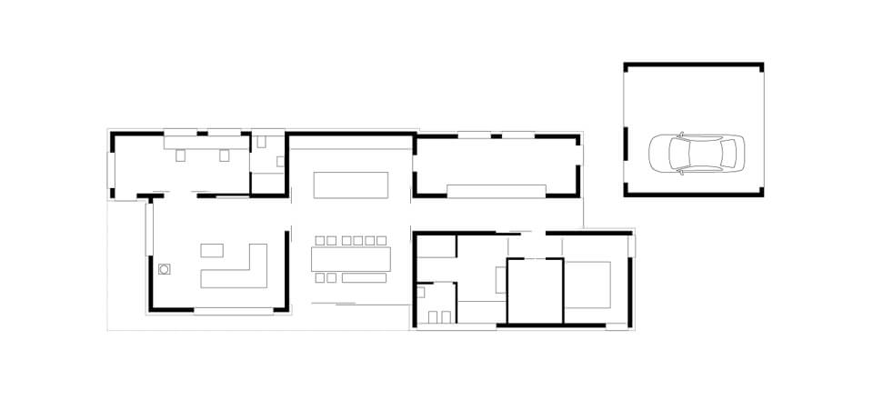
06_EFHFS_EG
1 | 2 | 3 | 4 | 5 | 6 | 7 | 8 | 9 | 10 | 11 | 12 | 13

Haus_F|S _ Plauen

2012-2014

Am Anfang stand der Wunsch der Bauherren nach einem Haus aus Beton. Natürliche, puristische Oberflächen sollten es sein. Schalungsstösse, Narben und kühle Haptik als Programm.Im weiteren Planungsverlauf entstand ein stringentes Konzept, in welchem die primäre Tragkonstruktion den sprichwörtlichen Rahmen für den Möbelausbau bildet. Kühler Beton der Wände harmoniert neben exakten Fronten der Weißlackmöbel sowie einer fugenlosen mineralischen Bodenbeschichtung. Herkömmliche Sichtweisen werden aufgelöst. Die Einfachheit der Form dominiert. Keine Klinke, kein vorstehender Griff, nichts Überflüssiges stellt den übergeordneten Entwurfsansatz in Frage. Raumhohe Schiebeelemente gliedern oder verbinden Räume, je nach Stimmung und Bedarf der Nutzer. Komplettiert wird der großzügige Raumeindruck durch zwei 4m lange Oberlichtfugen, welche die zugehörigen Funktionsbereiche in Ihrer Wirkung stärken und den Räumen eine angenehme Tageslichtatmosphäre verleihen. Das Spiel mit ursprünglichen Materialien setzt sich auch in den Fassaden fort. Eine Kombination aus Sichtbeton und rostrotem Cortenstahl für Garage und Tor dominiert den Eingangsbereich, während ein gefilzter Aussenputz am Wohnteil den handwerklichen Gesamteindruck abrundet.

Veröffentlichung

GraphisoftNews, Ausgabe 02/14

Standort

Oelweg | 08525 Plauen

Bauherr

Privat

Mitarbeiter

Marcel Quardt

Typologie

Wohnen

Leistungsphasen

1-9

Nutzfläche

206 m2

Bruttogrundfläche

235 m2

Bruttorauminhalt

749 m3

All fine.